2 The Hill Residence, Type A, 3-bedrooms
Quick Summary
- Object ID:Villa Type A, 3-bedrooms
- Type:Villa
- Area:195m²
- Bedrooms:3
- Bathrooms:2
- Year of construction:2023
- Note:Photos from show unit A1, taken Apr 2023. Villa design and interiors; Stefan Lebert. Photo credit Magnus Larsson
- Quality Certification 2026:
Description
A three-bedroom villa with 158 square meters spread out on two floors according to the architect drawing but with extended front terrace on the ground floor, a combined in- and outdoor area offers around 200 square meters
- with a great privacy!
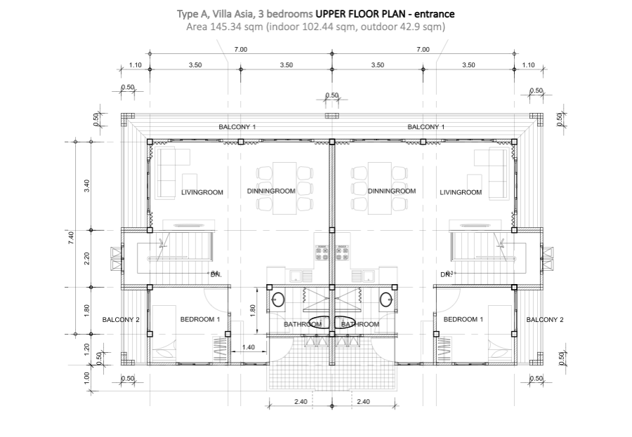
Upper floor
This unit is built on the lower land and with the slope behind you will actually enter the unit from the upper floor where the kitchen, living room and the third bedroom are located. A hallway is opening up for the view directly when entering the unit and a bathroom with hot water shower, toilet and sink. Bedroom 3 is a multi-functional room up to you to decide; home office extra storage, maid room, double bed or bunk bed depending on your need (A1 show a media room with balcony cancelled for bigger space). Aircon or ceiling fan will be ordered separately in this room.
The Premium kitchen is modern and well planned and easy to change to your favorite colors of doors and fronts to set your personal touch. Built in ceramic hob with four zones, refrigerator with separate freezer at the bottom, sink with colander, water filter system, hot water, cabinet prepared for dishwasher installation from beginning or at a later stage. Work top include laminate but can also be exchanged to granite top if prefferred. Dining area close to the window in the kitchen area with table for 4-6 persons is suitable.
Living room with sofa area and coffee table with view. Possible to have a room divider between the dining and living area or let it be open and choose a wall mounted smart-Tv if preferred. Mosquito nets are installed in combination with ventilation grills to keep the rooms ventilated. Add some floor, ceiling or wall-fans and let the cool breeze at The Hill do the job as an alternative to aircons.
Ground floor
The staircase leads to the ground floor where the hallway offers storage space under the stairs, access the two bedrooms and the bathroom. The laundry room lead you in two directions – to the service area with all outdoor Aircon compressor units and to the outdoor terrace/pool deck on the other direction. The laundry room has water, drain and electric prepared for washing machine that is included. Depending on your needs, even a tumble dryer can be a good idea if staying on Lanta throughout the rain season. It can be very humid over long periods. However, the service area where the aircon compressors are located is actually working as a giant hair dryer that can be used for drying clothes as well. Bedroom 2 with two separate twin beds and working desk and lots of storage for bed linen and personal stuff. Beds and silent air-conditioner included. If you prefer a double bed, and skip the working desk, that is also an option in this room. Windows in two directions with mosquito nets installed. Bedroom 1 is the master bedroom with a king or queen size double, storage and silent air-conditioner included. Here is an option to add a ceiling fan while others prefer to install a ceiling mounted mosquito net instead. When designing this units, we make decisions based on three different aspects in mind; Aesthetically beautiful, practical and of course comfortable with maintenance free materials to reduce the costs in the future. Many options are given to adapt and create the best villa possible no matter what your need is.
Outdoor ground floor
We have decided to push the building another meter back from the land border that gives us valuable space but also a lot of privacy. Outside bedroom 1 there is an option to build a pool of 3.5 x 4 meter. The building is elevated approximately 1 meter above the ground and a pool can therefor be built in 0.5 meter under ground to level exactly at the terrace floor to become a pool deck with outdoor shower installed s well. We will build a common pool for the area but if you prefer your private pool – this is the best spot for it! There are plenty of space for dining table and some chill areas as well. The morning sun will hit the pool few hours but leave it in the shadow from noon and forward which makes the water stay cool and refreshing. The size of the pool makes it also cheap to run it with very small amount of vaporizing and an efficient pump and sandfilter – combined with modern UV-light keeps the level of chemicals down to minimum.
The sun start to set behind the Lanta mountain and cooling down The Hill area from 5 p.m. but keeping the mountains and the greenery on Lanta Noi, few kilometers away, glowing another magical hour.
Outdoor
Type A1 and A4 is sold leaving A2 and A3 still available for purchase. You basically will have around five meters in front of your house where a half meter is saved for plants and trees along the fence which is only made for this villa type. A clear divider to the neighboring unit will also guarantee maximum privacy. We all can enjoy a common pool (will be built when all other constructions are done in the area). Pavilions, salas and chill areas for socializing will be added around the pool, surrounded by beautiful plantations.
Our residential area will focus on Lanta-lovers, newbies or veterans are all welcome! Some of our “early birds” from 2004 doesn’t need the family product any longer in the more busy school areas, nor built-in sport facilities which is easy to find elsewhere on Lanta. The Hill will be a pure residential area set in a calm, lush and tropical environment – that is out vision and what we are aiming for. The recent upgrade of the new roads and the second bridge that is officially already started March 2022 is a positive sign that Lanta is now transforming from an earlier remote island to be a part of the main land within Krabi District which also provides even more exciting investment possibility than ever before. We were already setting the phase for Lanta with the first residential area adjacent to Southern Lanta Resort already back in 2004, they were the very first investors on Lanta and the majority of them reminded us ten years later that we kept the promise of having reached the ROI – return-on-investment – exactly ten years later! So we do have a lot of knowledge and experience gathered over the years that will be at your advantage!
There will be some permanent living but mostly seasonal stays and option to renting out on a monthly basis for those who wish to do so. The International school at the bridge few minutes away is one group seeking long term rental at The Hill, walking distance permitting. We see other market groups like digital nomads phasing in as well. With Lanta Hideways Rental Management in our back since 2005 we dare to say we have a pretty clear idea of the rental market on Lanta and what our guests requires. But it is your unit and you decide if you want to rent out or not, the management service is included monthly to ensure your unit is always taken care of. We have a complete management program where you don’t need to do anything while outside Thailand. The program is based on 18 years of calibrating what is the best for each individual unit to maintain and increase its value, the residential area’s need of maintenance and the owner’s need when being away for a longer time. We have an excellent network of professional service companies and handyman and also work closely with the Thai authorities since many years – another reason why you as a buyer can enjoy a good night sleep when someone is keeping you safe by co-operating and following the local and national laws. We set a high level of pride and honor in keeping your investment safe!
Send an e-mail to info@lantahideaways.com so we can guide you through how your holiday home should be like. We speak Swedish, English and Thai.
Stefan Lebert & Jay Saenganan
Contact Us
-
Necessary
These cookies are not optional. They are needed for the website to function. -
Statistics
In order for us to improve the website's functionality and structure, based on how the website is used. -
Experience
In order for our website to perform as well as possible during your visit. If you refuse these cookies, some functionality will disappear from the website. -
Marketing
By sharing your interests and behavior as you visit our site, you increase the chance of seeing personalized content and offers.